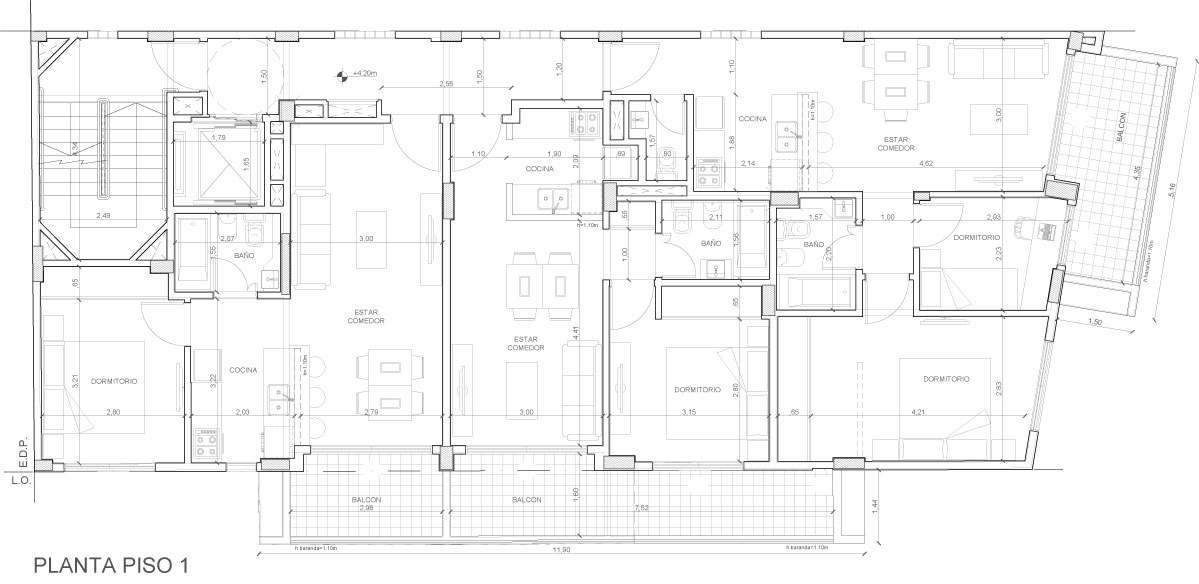
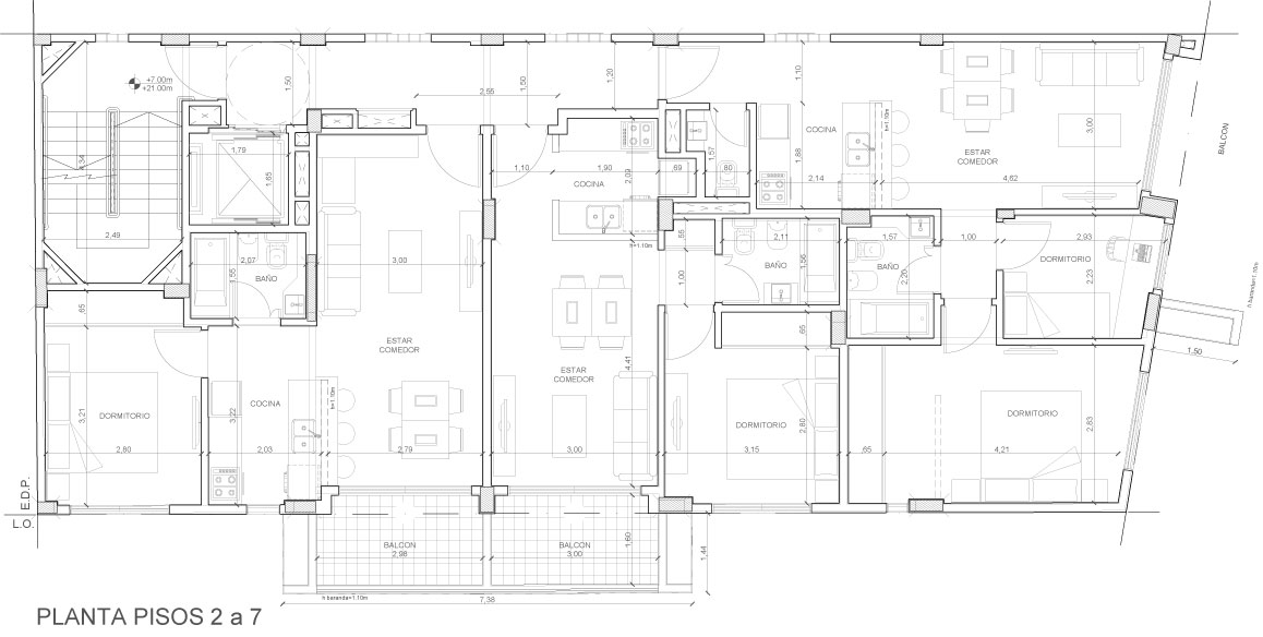
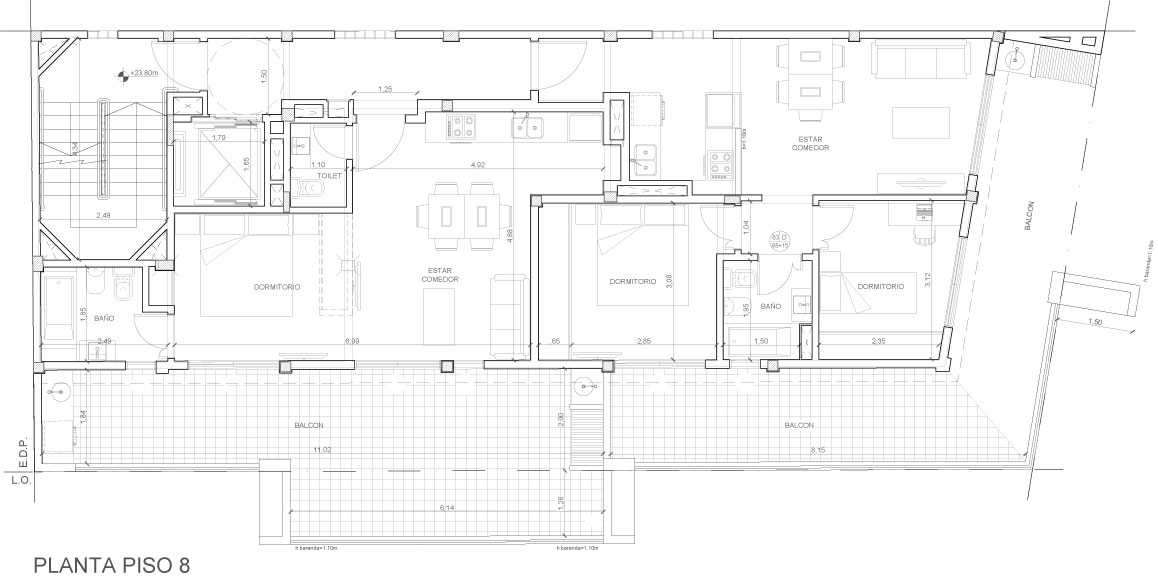
Este edificio, ubicado en Martiniano Leguizamon 7 esquina Av Rivadavia, cuenta con unidades de 1, 2 y 3 ambientes con balcones, que debido a su locación en una esquina,
algunos resultan tan amplios que tienen vista tambié hacia la calle Risso Patrón.
Centrado en el barrio de Villa Luro, tiene en sus cercanías múltiples comercios, escuelas y acceso a las autopistas Perito Moreno y General Paz. Como área deportiva destacada, a muy pocas cuadras se encuentra el Club Atlético Vélez Sarsfield.
Los trabajos se ejecutarán de acuerdo con las especificaciones que a continuación se enumeran. En todo lo que no se aclare específicamente queda entendido que se seguirán las reglas del arte de la construcción y los reglamentos correspondientes.
ESTRUCTURA DE HORMIGÓN ARMADO
Se realizará en un todo de acuerdo con las normas del Centro de Investigación de los Reglamentos Nacionales de Seguridad en las Obras Civiles (CIRSOC) del INTI.
MAMPOSTERÍA EN GENERAL
Todos los muros serán construidos con los espesores debidos con ladrillos de primera calidad, asentados con mezcla adecuada elaborada mecánicamente a base de cal hidráulica, cemento y arena. Los tabiques serán de ladrillos cerámicos huecos de 0,10 y 0,15 m, asentados con mezcla reforzada.
CONTRAPISOS
La mezcla a utilizarse se compondrá de arena, cal y cemento. En las terrazas se colocarán contrapisos de cascotes triturados sueltos con las pendientes necesarias. Sobre ese contrapiso se extenderá una carpeta de arena, cal y cemento. En los sectores donde sea necesario una aislación hidráulica, se extenderá una capa cementicia laminar con hidrófugo.
REVOQUES
La parte exterior de medianeras, patios y paramentos se revocará a la cal en tres etapas, una primera impermeable, a base de mortero de cal aérea reforzada con cemento e hidrófugo, grueso y fino. El revoque del frente se efectuará sobre una capa impermeable, terminándose el paramento con material preparado para frente según proyecto. Los paramentos de los ambientes principales y los palieres privados serán enlucidos en yeso, o revoque grueso y fino según corresponda.
CIELORRASOS
Se efectuarán con enduído de yeso aplicado y/o suspendido con terminación recta o Durlock, según corresponda.
CARPINTERIA EXTERIOR
Todas las aberturas de los ambientes que den al exterior serán ejecutadas en aluminio anodizado de color NEGRO. Todos los herrajes serán de primera calidad. Los dormitorios contarán con persianas (Marca Barbieri o similar) de aluminio anodizado inyetadas en su interior con espuma poliuretánica.
CARPINTERIA INTERIOR
Las puertas interiores serán tipo placa con detalles de calidad, de un espesor mínimo de 40mm.
MUEBLES DE COCINA
Se colocará horno y anafe a gas. La mesada se conformará en granito ó símil Silestone con bacha doble de acero inoxidable (Marca Jhonson). Se colocarán muebles de cocina (alacenas y bajo mesada) en laminado plástico, cajoneras y alacenas. Se instalará un purificador (marca SPAR) con salida al exterior e iluminación. Los bajo mesada contarán con un zocalo inferior como terminación en banquina de PVC revestido con aluminio.
INTERIORES DE PLACARD
En todos los casos se entregarán las unidades con interiores de placares completos con cajoneras.
VIDRIOS
Se colocarán cristales tipo laminado de espesor adecuado según las aberturas de los ambientes.
REVESTIMIENTOS
En cocinas y baños cerámicas de primera calidad. En paredes interiores, yeso y pintura de obra de primera calidad.
PISOS
Flotantes del tipo vinílico PVC ó similar en estar-comedor, toilette, cocinas, pasos y dormitorios. Cerámica de primera calidad en baños y toilettes.
ARTEFACTOS SANITARIOS
Se colocarán artefactos blancos de Marca Roca. En cada baño se instalará un inodoro con mochila, bidet, y bañera. El lavatorio descansará sobre una mesada de mármol de Carrac o calidad similar. Las griferías serán de Marca Roca con sus accesorios correspondientes. Todos los baños contaran con extractor de aire y espejo.
INSTALACIÓN SANITARIA
Se construirá en la forma reglamentaria. Las descargas de cloaca y pluviales se construirán en polipropileno. Las cañerías de distribución de agua fría y caliente serán de termofusion de primera marca
INSTALACIÓN ELÉCTRICA
Se construirá de acuerdo con la reglamentación A.E.A. (Asociación Electrotécnica Argentina); las cañerías estarán totalmente embutidas. En todos los ambientes habrá tomacorrientes suficientes.
INSTALACIONES ELÉCTRICAS ACCESORIAS
Se proveerá a cada departamento la instalación para bocas de TV, y portero eléctrico, y las cañerías para la instalación reglamentaria de teléfono y aire acondicionado.
PROVISIÓN DE AGUA CALIENTE
La provision de agua caliente será del tipo central con equipos a gas de ultima generación con alta eficiencia energética.
SISTEMA DE REFRIGERACIÓN
En todos los ambientes se dejará prevista la instalación eléctrica y la descarga de agua. En los ambientes que lo ameriten, se entregaran con la preinstalación de interconexión.
INSTALACIÓN CONTRA INCENDIOS
Cumplirá con las normas municipales en vigencia. Se proveerán puertas de seguridad e instalación con hidrantes con escaleras protegidas.
PINTURA
Los cielorrasos se pintarán con látex especial para cielorrasos. La carpintería metálica se pintará con dos manos de pintura anticorrosiva y tres de esmalte sintético. Las paredes de superficie común se pintarán al látex. Las paredes medianeras se pintaran con pintura impermeable para medianeras
ENTRADA
Será terminada con cuidados detalles y decorado con criterio funcional, acorde con la categoría del edificio, asimismo el Edificio contará con un sistema de CCTV.
ASCENSOR
Se instalará un ascensor con puertas de cierre automático. La cabina estará revestida con acero inoxidable, espejo y contará con iluminación led.
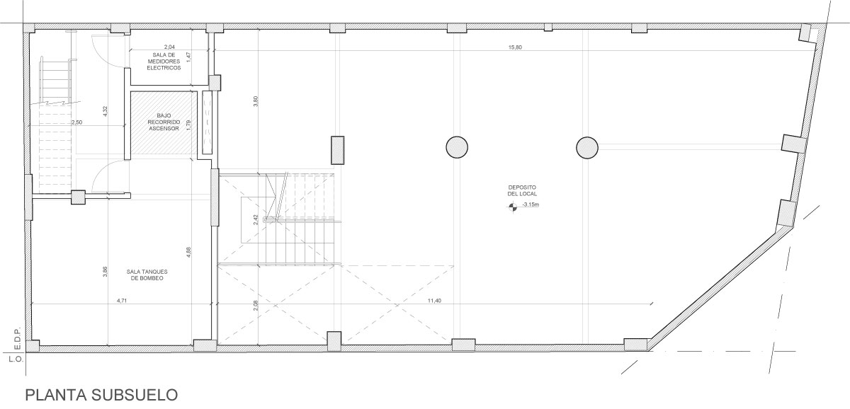
BOMBAS
En sala de máquinas se ubicarán el Tanque de Bombeo y una batería de bombas para el sistema de elevación de agua sanitaria.
PORTERO ELECTRICO
Se instalara en todas las unidades portero eléctrico visor.






